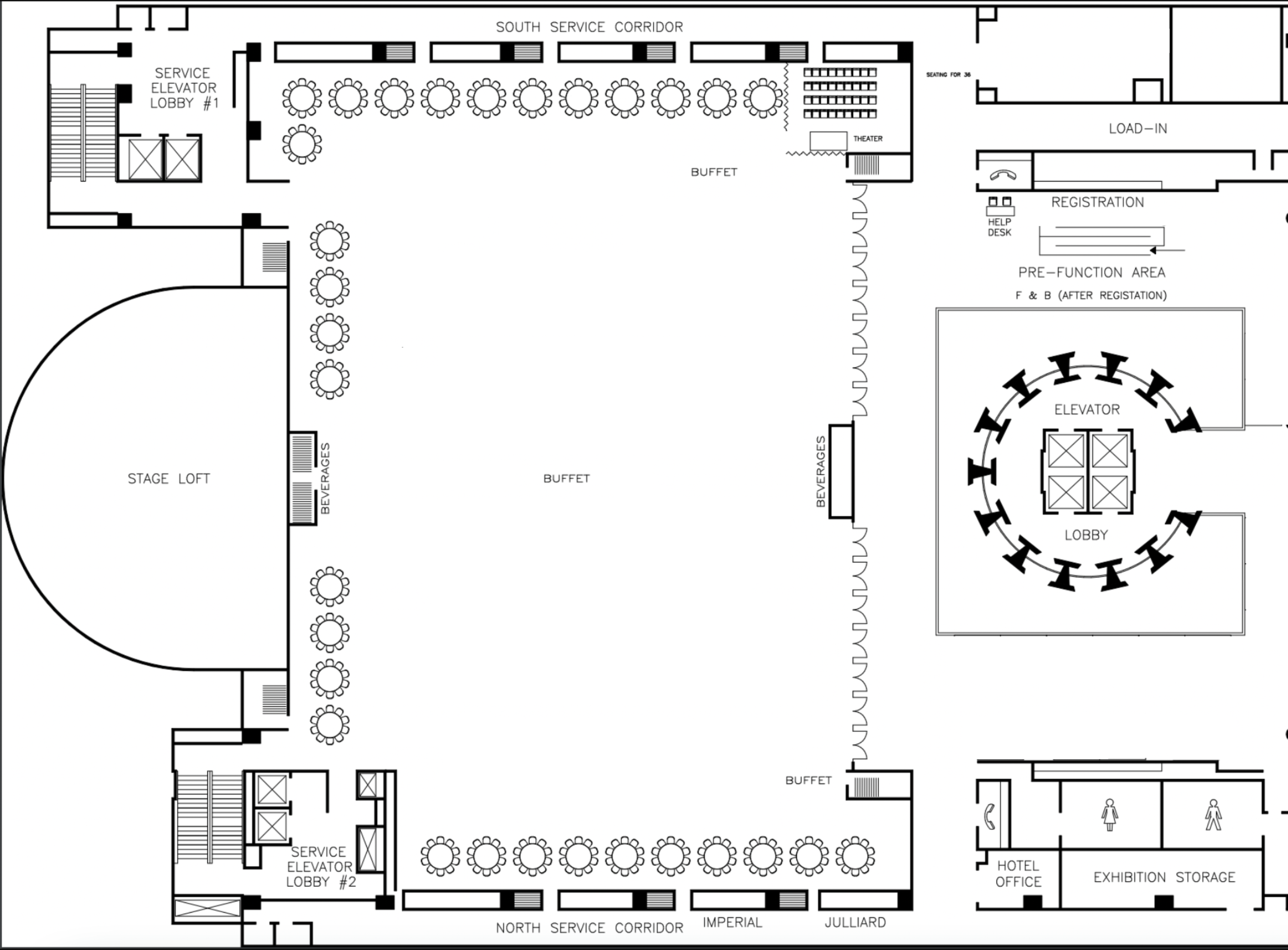
This floorplan is presented on CadmiumCD's eventScribe Website platform.

2025 NBOA Annual Meeting

New York Marriott Marquis, New York, New York

February 23 – 26, 2025 (Sunday – Wednesday)

floor-plan